Ons kantoor is lid van Baerz & Co Luxury Homes; een internationaal platform dat exclusieve woningmakelaars met elkaar verbindt. Neem contact op met ons secretariaat voor meer informatie over het landelijke aanbod, waarvan u hieronder een selectie kunt bekijken.

HAAREN
Nieuwe Erven 12 - 5076 NP
Niederlande

Marleen de Bekker profile image
Marleen de Bekker
Real Estate Agent
€1,250,000 k.k.
Wohnfläche
184m2
Grundstücksgröße
918m2
Schlafzimmer
5

Beschreibung

Dieses Einfamilienhaus in Haaren vereint seltene Privatsphäre mit großzügigem Wohnen auf einem weitläufigen Grundstück von 918 m² am Rand des Dorfes. Mit einer Wohnfläche von 184 m² bietet das Haus vier Schlafzimmer auf einer Ebene und eignet sich ideal für ein harmonisches Familienleben. Das durchdachte Design wird deutlich im Übergang vom sonnigen Wohnzimmer – eingerahmt von großen Fenstern und einem zentralen Kamin – in die moderne offene Küche mit Hochglanz-Fronten, einer Arbeitsplatte aus Verbundmaterial, Quooker und zwei Backöfen. Ein großer Hauswirtschaftsraum verbindet Garage und Garten, was den Alltag besonders komfortabel gestaltet.

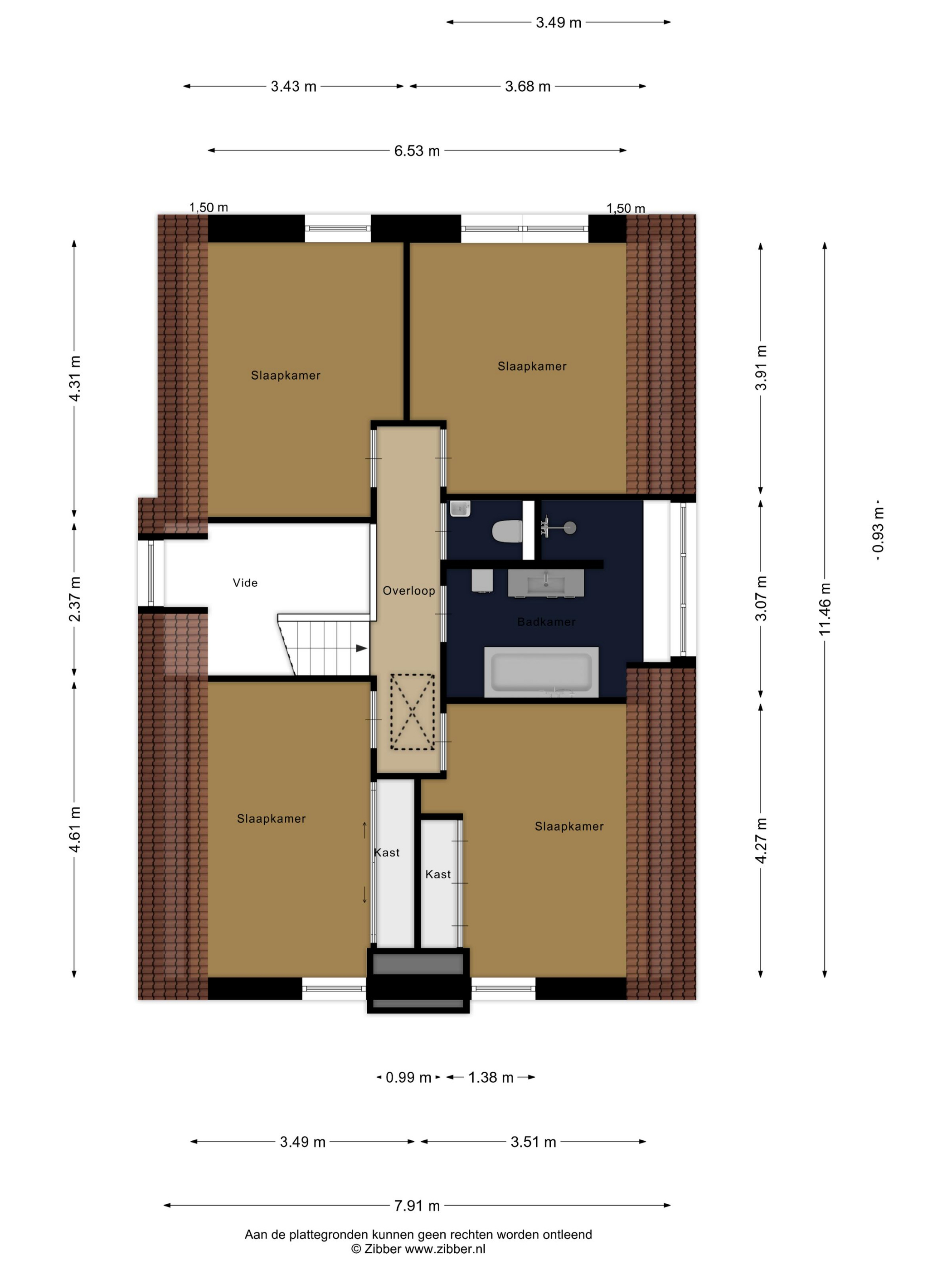
Im Obergeschoss bietet jedes Schlafzimmer etwa 15 m² ruhigen Rückzugsraum. Das Badezimmer ist mit begehbarer Dusche, Doppelwaschtisch, großer Badewanne, Tageslicht und Fußbodenheizung ausgestattet. Ein Dachboden, der sich über die gesamte Hauslänge erstreckt, sorgt für reichlich Stauraum für saisonale Dinge.

Im Außenbereich wechseln sich eine großzügige Sonnenterrasse, ein überdachter Bereich mit Oberlicht und eine abgeschirmte Sauna ab. Gewachsene Hecken bürgen für Privatsphäre, zudem lädt der Garten zum Spielen und Entspannen ein. Die isolierte Garage mit 3,85 m x 6,30 m erhöht die Nutzungsvielfalt, während auf der Einfahrt vier bis sechs Fahrzeuge Platz finden. Achtzehn Solarpanels, vollständige Dämmung und eine Energieeffizienzklasse A+ garantieren dauerhafte Wirtschaftlichkeit.

Das Haus befindet sich in einer ruhigen Wohngegend von Haaren, nahe Cafés, Restaurants, Radwegen sowie dem weitläufigen Naturschutzgebiet Kampina und dem Nationalpark Loonse en Drunense Duinen. Der fließende Übergang zwischen Innen- und Außenbereichen, zeitgemäßer Komfort und die Nähe zum Dorfleben machen diese Immobilie zu einem einladenden Familienrefugium im Herzen der Niederlande.

Entdecken Sie Haaren mit Baerz, Ihrem vertrauenswürdigen persönlichen Immobilienfinder & Berater

Vermögende Käufer profitieren von Beratern mit tiefem lokalen Wissen, exzellenten Kontakten und Expertise im grenzüberschreitenden Immobiliengeschäft. Viele Spitzenimmobilien wechseln diskret den Eigentümer, oft durch spezialisierte Vermittler mit Verhandlungsgeschick und umfassender Prüfung. Ein erfahrener Berater verschafft Zugang zu versteckten Gelegenheiten und schützt die Interessen der Klienten bei komplexen Prozessen.

Vermeiden Sie häufige Fallstricke

Internationale Käufer verschwenden oft wertvolle Zeit mit doppelten, veralteten oder irreführenden Online-Angeboten, insbesondere da fast 30% der Luxusimmobilien nie auf dem öffentlichen Markt erscheinen. Verkäufermakler vertreten die Interessen des Verkäufers, nicht die des Käufers. Selbst die Anfrage nach Informationen zu einer Immobilie kann dazu führen, dass ein Verkäufermakler Sie ohne Ihre Zustimmung als seinen „Kunden“ registriert.
Mit Baerz Property Finders & Advisors vermeiden Sie all diese Fallstricke vollständig. Wir arbeiten ausschließlich in Ihrem Auftrag, bieten unabhängige Vertretung, klare Beratung und Zugang zu allen verfügbaren Immobilien, einschließlich Off-Market-Möglichkeiten, die andere nie zu sehen bekommen.

Interessiert an einem Personal Property Advisor?

Wir zeigen Ihnen alle verfügbaren Häuser an einem Ort. Kontaktieren Sie uns gerne, um zu erfahren, wie wir Ihre Bedürfnisse erfüllen und Ihre Interessen exklusiv schützen können.

Merkmale

Solarmodule
Eigentumsübertragung
Verkaufspreis
€ 1.250.000 k.k.
Status
onder bod
Annahme
in overleg
Bau
Art des Hauses
Eengezinswoning
Gebäudetyp
vrijstaande woning
Bauzeitraum
2016
Energieeffizienzklasse
A+
Dachtyp
zadeldak
Schlafzimmer
5
Badezimmer
1
Oberflächen und Volumen
Wohnfläche
184 m2
Anderer Innenbereich
44 m2
Außenbereich am Gebäude angebaut
36 m2
Externer Stauraum
9 m2
Volumen in Kubikmetern
844 m3
Grundstücksgröße
918 m2
Einrichtungen
Mechanische ventilatie
Tv kabel
Rookkanaal
Schuifpui
Sauna
Glasvezel kabel
Zonnepanelen
Aan rustige weg
In woonwijk
Baerz & Co Property Brochure

Broschüre

Videos

Grundrisse

Finesse Makelaardij

Groenstraat 31
5062 NA Oisterwijk

info@finesse-makelaardij.nl
+31 655757171

www.finesse-makelaardij.nl

Information / Besichtigungsanfrage

Marleen de Bekker profile image
Marleen de Bekker
Real Estate Agent