Ons kantoor is lid van Baerz & Co Luxury Homes; een internationaal platform dat exclusieve woningmakelaars met elkaar verbindt. Neem contact op met ons secretariaat voor meer informatie over het landelijke aanbod, waarvan u hieronder een selectie kunt bekijken.

AMSTERDAM
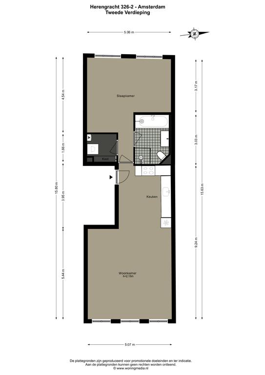
Herengracht 326 2 - 1016 CE
Netherlands

Sander Bovenkerk profile image
Sander Bovenkerk
Real estate agent
€2,550 p.m.
Living Area
71m2
Plot Size
N/A
Bedrooms
1

Description

Apartment Amsterdam offers an experience of quiet refinement on the Herengracht, one of the city’s most celebrated canals. This 71 m² residence, situated on the second floor of a characteristic canal house, welcomes you with gentle light through generous windows framing picturesque canal views. The fully furnished apartment comprises a spacious living area that flows seamlessly into the open kitchen, where every essential is in place, from a gas stove with oven to a dishwasher and refrigerator.

The solitary bedroom, located at the rear, is enveloped by tranquil views of the green inner gardens, maintaining a subtle sense of privacy. A well-planned central laundry area includes a washing machine, dryer, and storage, while the bathroom provides a shower, bathtub, and refined cabinetry.

This apartment sits among the heritage boutiques, cafés, restaurants, and cultural landmarks of Amsterdam’s historic centre. The Dam, Magna Plaza, the Nine Streets, the Jordaan, the Westerkerk, and Central Station are only a walk away, with public transport equally accessible. For those seeking a luxury apartment for rent in Amsterdam that balances cosmopolitan pace with thoughtful calm, this property offers a considered urban retreat.

Explore Amsterdam with Baerz, Your Trusted Personal Property Finder & Advisor

Navigating Amsterdam’s luxury market calls for deep local intelligence, discretion, and negotiation expertise. Top advisors provide access to private listings, clarify nuanced ownership rules, and pinpoint value in a market where opportunities seldom reach public view. Advisory teams offer rigorous asset vetting and representation, strengthening your position during negotiations, ensuring seamless transactions, and protecting your privacy throughout the process.

Features

Transfer of ownership
Rental Price
€ 2.550 p.m.
Status
beschikbaar
Acceptance
direct
Construction
Kind of house
Tussenverdieping
Building type
appartement
Construction period
1700
Energy rating
B
Roof type
zadeldak
Bedrooms
1
Bathrooms
1
Surface Areas And Volume
Living Area
71 m2
Other indoor space
0 m2
Volume in cubic meters
213 m3
Facilities
Tv kabel
Aan water
In centrum
Vrij uitzicht
Baerz & Co Property Brochure

Brochure

Videos

Floor Plans

Heeren Makelaars

Stadionweg 75
1077 SE Amsterdam

info@heerenmakelaars.nl
+31 204702255

www.heerenmakelaars.nl

Information / Viewing request

Sander Bovenkerk profile image
Sander Bovenkerk
Real estate agent