Ons kantoor is lid van Baerz & Co Luxury Homes; een internationaal platform dat exclusieve woningmakelaars met elkaar verbindt. Neem contact op met ons secretariaat voor meer informatie over het landelijke aanbod, waarvan u hieronder een selectie kunt bekijken.

AMSTERDAM
Minervalaan 76 3 - 1077 PH
Netherlands

Michiel Floberg profile image
Michiel Floberg
Real estate agent
€1,385,000 k.k.
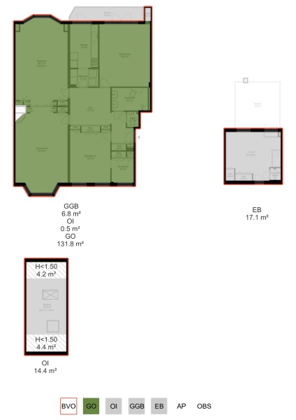
Living Area
132m2
Plot Size
N/A
Bedrooms
2

Description

Apartment Amsterdam South Minervalaan is an elegant residence of approximately 132m², set along one of the area’s grand, tree-lined avenues. This third-floor apartment offers two spacious bedrooms, two bathrooms, and a west-facing balcony with views across lush inner gardens. Architectural heritage is evident throughout, with Berlage-era details, original en-suite doors, bay windows, and a thoughtfully preserved sense of authenticity. The living and dining rooms are bright and refined, seamlessly connected or separate by design, while the kitchen is fully appointed with modern appliances and opens directly to the balcony. Both bedrooms present generous proportions, with the main room featuring French doors to the outdoors and the second appointed with a walk-in closet.

An attic level provides a separate room of approximately 17m², complete with its own shower and private roof terrace, as well as a spacious storage area of 14m² accessible via a retractable ladder. A private lift, double-glazed Bengglas windows (added in 2023), and insulated Fermacell floors further elevate comfort.

Positioned between Stadionweg and Zuid/WTC station, residents enjoy easy access to international schools, Amsterdam’s finest parks, a vibrant local dining scene, and direct transport links to Schiphol Airport. This apartment represents understated quality and measured luxury in Amsterdam South.

Explore Amsterdam with Baerz, Your Trusted Personal Property Finder & Advisor

Navigating Amsterdam’s luxury market calls for deep local intelligence, discretion, and negotiation expertise. Top advisors provide access to private listings, clarify nuanced ownership rules, and pinpoint value in a market where opportunities seldom reach public view. Advisory teams offer rigorous asset vetting and representation, strengthening your position during negotiations, ensuring seamless transactions, and protecting your privacy throughout the process.

Special Features

Air conditioning

Features

Transfer of ownership
Asking Price
€ 1.385.000 k.k.
Status
verkocht onder voorbehoud
Acceptance
in overleg
Construction
Kind of house
Bovenwoning
Building type
appartement
Construction period
1931
Roof type
zadeldak
Bedrooms
2
Bathrooms
2
Surface Areas And Volume
Living Area
132 m2
Other indoor space
15 m2
Exterior space attached to the buildinge
7 m2
External storage space
17 m2
Volume in cubic meters
556 m3
Facilities
Tv kabel
Lift
Airconditioning
Aan rustige weg
In woonwijk
Vrij uitzicht
Baerz & Co Property Brochure

Brochure

Videos

Floor Plans

Heeren Makelaars

Stadionweg 75
1077 SE Amsterdam

info@heerenmakelaars.nl
+31 204702255

www.heerenmakelaars.nl

Information / Viewing request

Michiel Floberg profile image
Michiel Floberg
Real estate agent