Ons kantoor is lid van Baerz & Co Luxury Homes; een internationaal platform dat exclusieve woningmakelaars met elkaar verbindt. Neem contact op met ons secretariaat voor meer informatie over het landelijke aanbod, waarvan u hieronder een selectie kunt bekijken.

AMSTERDAM
Prins Hendriklaan 14 A - 1075 BB
Netherlands

Eran Hausel profile image
Eran Hausel
Real estate agent
€4,000,000 k.k.
Living Area
291m2
Plot Size
244m2
Bedrooms
5

Description

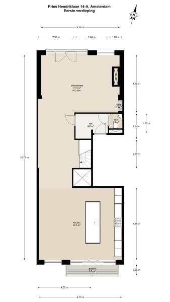
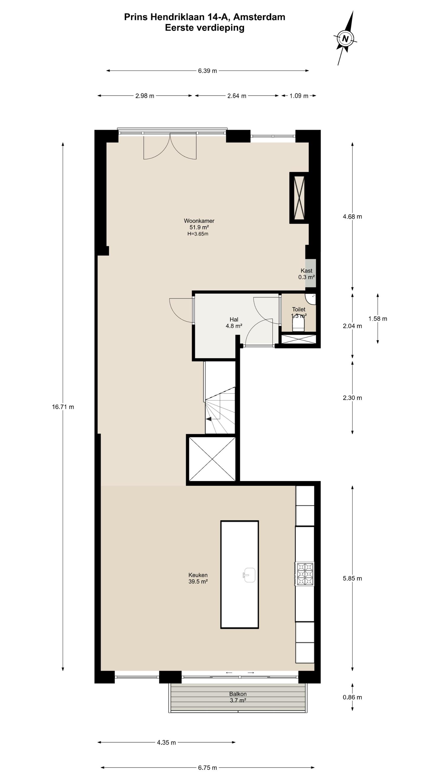
Dubbel benedenhuis Amsterdam Oud-Zuid Prins Hendriklaan redefines city living, offering a distinguished 291 m² residence on three expansive levels with direct adjacency to Vondelpark. This unique property welcomes you with five bedrooms and four bathrooms, thoughtfully arranged for privacy and effortless hospitality. On the main living floor, high ceilings and generous windows bring natural light into the refined living area. The open kitchen forms the heart of the home, equipped with a generous island, double sinks, wine climate cabinet, and premium appliances. Just off the kitchen, an elegantly proportioned balcony with original stained-glass windows provides an inviting retreat.

The elevated ground floor offers three calming bedrooms, including a principal suite with bespoke wardrobes and a serene en-suite bathroom finished with a bathtub, double vanity, walk-in shower, and underfloor heating. Two additional modern bathrooms and a separate guest toilet enhance daily comfort. The souterrain creates further flexibility, with a second living space, a fully equipped kitchen, a fourth bedroom, and direct access through French doors to a private rear garden of approximately 76 m². Here, outdoor entertaining and intimate gatherings blend seamlessly into daily life.

Located in Amsterdam Oud-Zuid, footsteps from Cornelis Schuytstraat, Van Baerlestraat, and P.C. Hooftstraat, the property combines residential tranquility with immediate access to renowned shops, cafés, and cultural institutions such as Museumplein. Tram and bus connections as well as proximity to the A10 ensure efficient mobility. Energy class B, lift access, mechanical ventilation, and partial underfloor heating reflect the commitment to both modern comfort and efficiency. This vrijstaande dubbel benedenhuis stands quietly on freehold land, poised for those seeking both discretion and an address of enduring value in Amsterdam.

Explore Amsterdam with Baerz, Your Trusted Personal Property Finder & Advisor

Navigating Amsterdam’s luxury market calls for deep local intelligence, discretion, and negotiation expertise. Top advisors provide access to private listings, clarify nuanced ownership rules, and pinpoint value in a market where opportunities seldom reach public view. Advisory teams offer rigorous asset vetting and representation, strengthening your position during negotiations, ensuring seamless transactions, and protecting your privacy throughout the process.

Features

Transfer of ownership
Asking Price
€ 4.000.000 k.k.
Status
verkocht onder voorbehoud
Acceptance
in overleg
Construction
Kind of house
Dubbel benedenhuis
Building type
appartement
Construction period
1907
Energy rating
B
Roof type
plat dak
Bedrooms
5
Bathrooms
4
Surface Areas And Volume
Living Area
291 m2
Other indoor space
0 m2
Exterior space attached to the buildinge
4 m2
Volume in cubic meters
1221 m3
Plot Size
244 m2
Facilities
Mechanische ventilatie
Tv kabel
Buitenzonwering
Lift
Aan rustige weg
In woonwijk
Baerz & Co Property Brochure

Brochure

Videos

Heeren Makelaars

Stadionweg 75
1077 SE Amsterdam

info@heerenmakelaars.nl
+31 204702255

www.heerenmakelaars.nl

Information / Viewing request

Eran Hausel profile image
Eran Hausel
Real estate agent