Ons kantoor is lid van Baerz & Co Luxury Homes; een internationaal platform dat exclusieve woningmakelaars met elkaar verbindt. Neem contact op met ons secretariaat voor meer informatie over het landelijke aanbod, waarvan u hieronder een selectie kunt bekijken.

BERGEN (NH)
Plein 32 - 1861 JZ
Netherlands

Jos Toussaint profile image
Jos Toussaint
Real Estate Agent
€1,145,000 k.k.
Living Area
180m2
Plot Size
N/A
Bedrooms
3

Description

Plein 32 Bergen, this fine and spacious flat with two floors and a spacious garage box in the basement car park, is located in an absolute prime location in the bustling centre of Bergen.

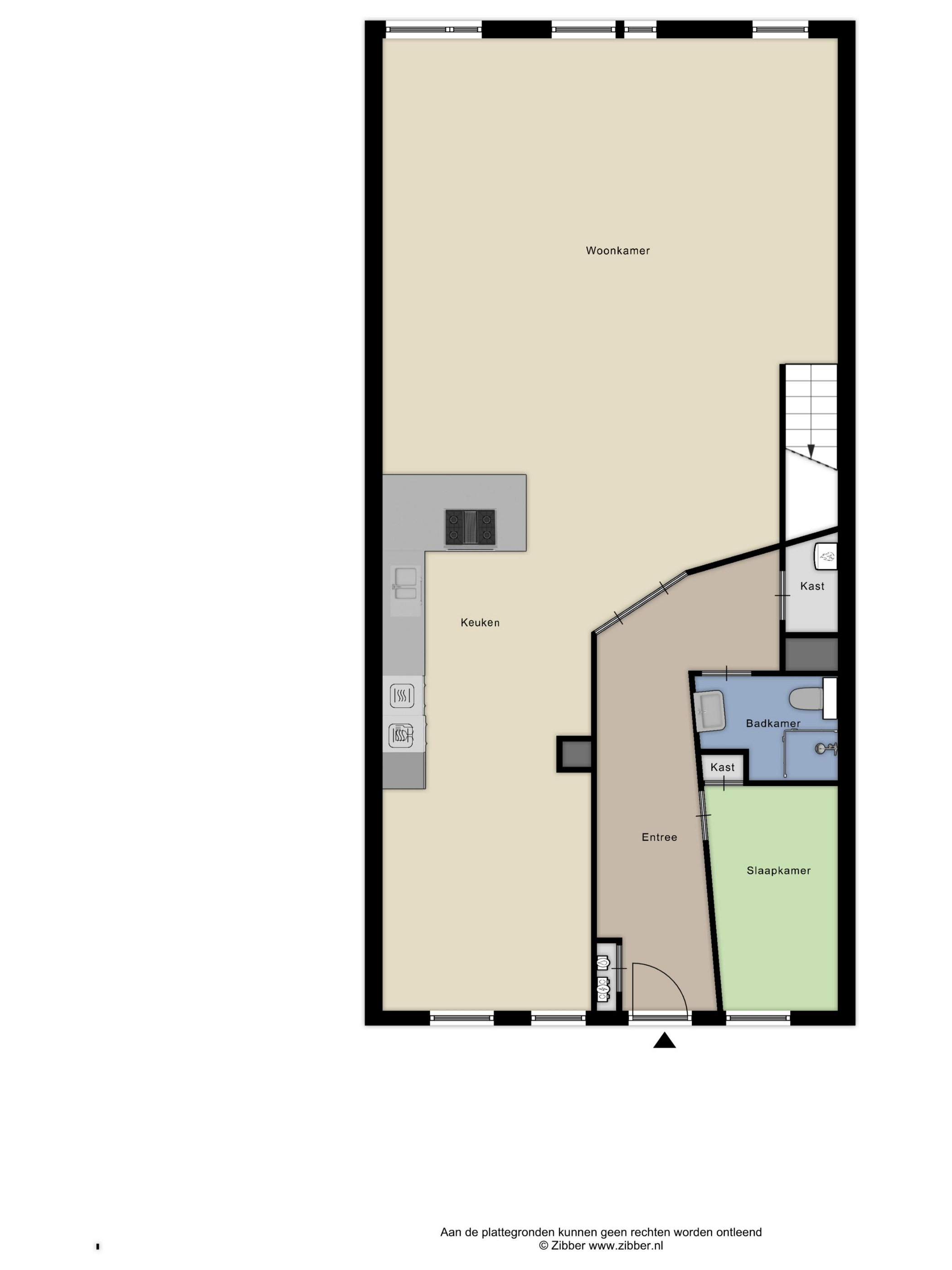
Via the central entrance with staircase and lift, we reach the flat here. Via the spacious terrace, facing south, we enter the flat through the front door. Upon entering the apartment, we are welcomed into a spacious and bright hallway, where there is ample space for a wardrobe. From here, access to a bedroom, the first bathroom and the living room.

The spacious living room features large windows and two light tubes, which provide plenty of natural light.
The living room also has two cosy seating areas. The room flows into the open kitchen, which is fully equipped with high-quality built-in appliances and plenty of storage space. On this floor there is also an office/bedroom and the first bathroom with shower, toilet and washbasin.

The staircase leads to the first floor, where you will find two spacious bedrooms, both with closet space, and the second bathroom. This luxurious bathroom is equipped with a bathtub, double sink and a walk-in shower. From the rear bedroom, access to the private south-facing balcony.

The property comes with a spacious garage box, this can be found in the garage under this apartment complex

Location:
Located in the heart of Bergen, right in the centre between shops, restaurants and other amenities. Proximity to the beach and dunes makes this location particularly attractive for those who love nature, tranquillity and relaxation. In short, a beautiful property in a fantastic and central location.

- The entire flat has underfloor heating.
- Thanks to good insulation and 8 solar panels (2020 installed) very low energy costs.

If you are curious about this fine and spacious flat, we would be happy to make an appointment for a viewing!

Features

Transfer of ownership
Asking Price
€ 1.145.000 k.k.
Status
beschikbaar
Acceptance
in overleg
Construction
Kind of house
Bovenwoning
Building type
appartement
Construction period
2003
Energy rating
B
Roof type
plat dak
Bedrooms
3
Bathrooms
2
Surface Areas And Volume
Living Area
180 m2
Other indoor space
0 m2
Exterior space attached to the buildinge
29 m2
External storage space
28 m2
Volume in cubic meters
596 m3
Facilities
Mechanische ventilatie
Tv kabel
Lift
Dakraam
Balansventilatie
In centrum
Baerz & Co Property Brochure

Brochure

Videos

Floor Plans

Damen Makelaardij

Ambyerstraat-Noord 72
6225 EG Maastricht

j.toussaint@damen-og.nl
+31 433479090

www.damen-og.nl

Information / Viewing request

Jos Toussaint profile image
Jos Toussaint
Real Estate Agent