Ons kantoor is lid van Baerz & Co Luxury Homes; een internationaal platform dat exclusieve woningmakelaars met elkaar verbindt. Neem contact op met ons secretariaat voor meer informatie over het landelijke aanbod, waarvan u hieronder een selectie kunt bekijken.

BERGSCHENHOEK
Van Keulendreef 51 - 2661 ST
Netherlands

Dominique Blom profile image
Dominique Blom
Register Makelaar Taxateur
€850,000 k.k.
Living Area
177m2
Plot Size
252m2
Bedrooms
5

Description

Herenhuis Bergschenhoek is a five-bedroom family property offering unobstructed water views in a tranquil canal-side setting. This residence, spanning 177 m² on a 252 m² plot, stands within the welcoming Oosteindsche Ackers district, renowned for its child-friendly atmosphere and easy access to daily conveniences. The location offers a rhythm defined by nearby parks, schools, local amenities, and seamless links to urban centres via the A12, A13, and public transport.

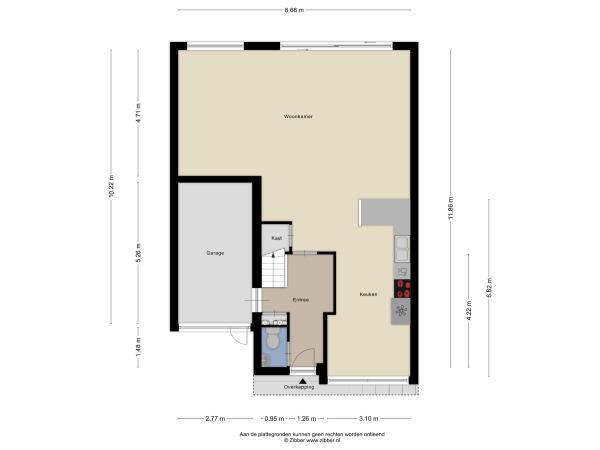
A broad driveway accommodates multiple vehicles and includes a charging station for electric cars, leading into a garage with integral access. The entrance unfolds to an open-plan kitchen at the front, fully equipped for contemporary living, and a bright living room opening onto a landscaped south-facing garden through sliding doors. Sun lingers here deep into the afternoon, sheltered by an electric sunshade.

Upstairs, four bedrooms await on the first floor, each designed with built-in wardrobes and views over the green neighbourhood or canal. The bathroom offers a shower, bathtub, and double sinks. Ascend to the second floor for a fifth bedroom and a generous roof terrace, ideal for quiet moments or laundry in the sun.

Modern amenities include mechanical ventilation, jacuzzi, double glazing, and complete insulation, supported by energy class B. The entire property is carpeted, creating a gentle, coherent tactile experience within this Herenhuis Bergschenhoek. The home extends an invitation to refined family life in a quintessential Dutch setting.

Explore Bergschenhoek with Baerz, Your Trusted Personal Property Finder & Advisor

Navigating the upper tier of Bergschenhoek’s real estate market requires expertise, local intelligence, and trusted networks. A seasoned advisor facilitates discreet access to exclusive listings and negotiates intricate terms with market fluency. Their nuanced understanding is critical when evaluating bespoke builds, renovation potential, and community dynamics. Advisory insight also ensures seamless coordination across legal, technical, and financial dimensions, streamlining even the most complex acquisitions.

Features

Transfer of ownership
Asking Price
€ 850.000 k.k.
Status
beschikbaar
Acceptance
in overleg
Construction
Kind of house
Herenhuis
Building type
geschakelde woning
Construction period
1999
Energy rating
B
Roof type
samengesteld dak
Bedrooms
5
Bathrooms
1
Surface Areas And Volume
Living Area
177 m2
Other indoor space
15 m2
Exterior space attached to the buildinge
27 m2
Volume in cubic meters
679 m3
Plot Size
252 m2
Facilities
Mechanische ventilatie
Jacuzzi
Schuifpui
Glasvezel kabel
Aan water
In woonwijk
Baerz & Co Property Brochure

Brochure

Videos

Floor Plans

DB Makelaars

Dorpsstraat 79
2661 CE Bergschenhoek

dominique@dbmakelaars.nl
+31 107850833

www.dbmakelaars.nl

Information / Viewing request

Dominique Blom profile image
Dominique Blom
Register Makelaar Taxateur