Ons kantoor is lid van Baerz & Co Luxury Homes; een internationaal platform dat exclusieve woningmakelaars met elkaar verbindt. Neem contact op met ons secretariaat voor meer informatie over het landelijke aanbod, waarvan u hieronder een selectie kunt bekijken.

MAASTRICHT
Observantenweg 61 - 6212 EP
Netherlands

Kenneth Kruse profile image
Kenneth Kruse
NVM MAKELAAR - RM/RT
€1,095,000 k.k.
Living Area
140m2
Plot Size
273m2
Bedrooms
4

Description

Stylish detached house with garage, city garden and high-quality finish in a popular location in Sint Pieter.

This excellently maintained and modernised detached house is located on the popular and quiet ‘Observantenweg’, at the foot of the ‘Sint-Pietersberg’ and within walking distance of the historic centre of Maastricht. The house has an indoor garage, four bedrooms, a sunny city garden, and an external storage room. The generous windows, stylish finish, and smart layout make this an extremely comfortable family home in one of the most beautiful parts of the city.

The house was extended and completely modernised in 2010 with high-quality, sustainable materials. Several important facilities have recently been updated, including roof insulation (2022), mechanical ventilation, an intercom with a camera, and air conditioning. Thanks to the combination of modern technology, aesthetic choices, and a quiet location, this is a ready-to-move-in home that offers a lot of comfort.

DEscriptION

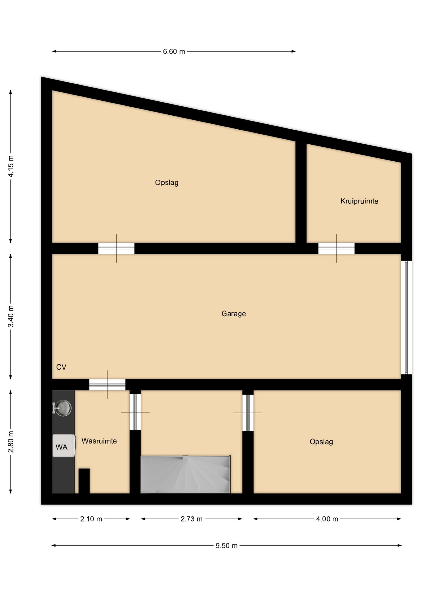
Basement:
The house has a large basement with several functional rooms. The spacious garage (approx. 33 m²) has an electric sectional door and direct access to a practical laundry room, a storage cellar and a spacious storage room (approx. 20 m²). The central heating system is also located in the basement (Nefit HR Topline, purchased in 2010).

Ground floor:
Through the representative entrance with a stylish wardrobe, open loft and access to the guest toilet with wall-mounted toilet and washbasin, the meter cupboard and the bright, spacious living room (approx. 68m²). The living room has an attractive Faber gas fireplace that is serviced annually and provides extra warmth and atmosphere on cold days. The designer radiators and beautiful parquet flooring add extra style to the room.
The open kitchen with large cooking island has a luxurious, handle-free design and is equipped with high-quality built-in appliances: a 5-zone induction hob, ceiling extractor, dishwasher, fully automatic coffee machine, convection oven, refrigerator and sink.

The sliding doors at the front lead to the cosy, green front garden, a wonderful place to enjoy the evening sun. At the rear, French doors give access to the sheltered north-east facing city garden, with a sunshade and several seating areas.

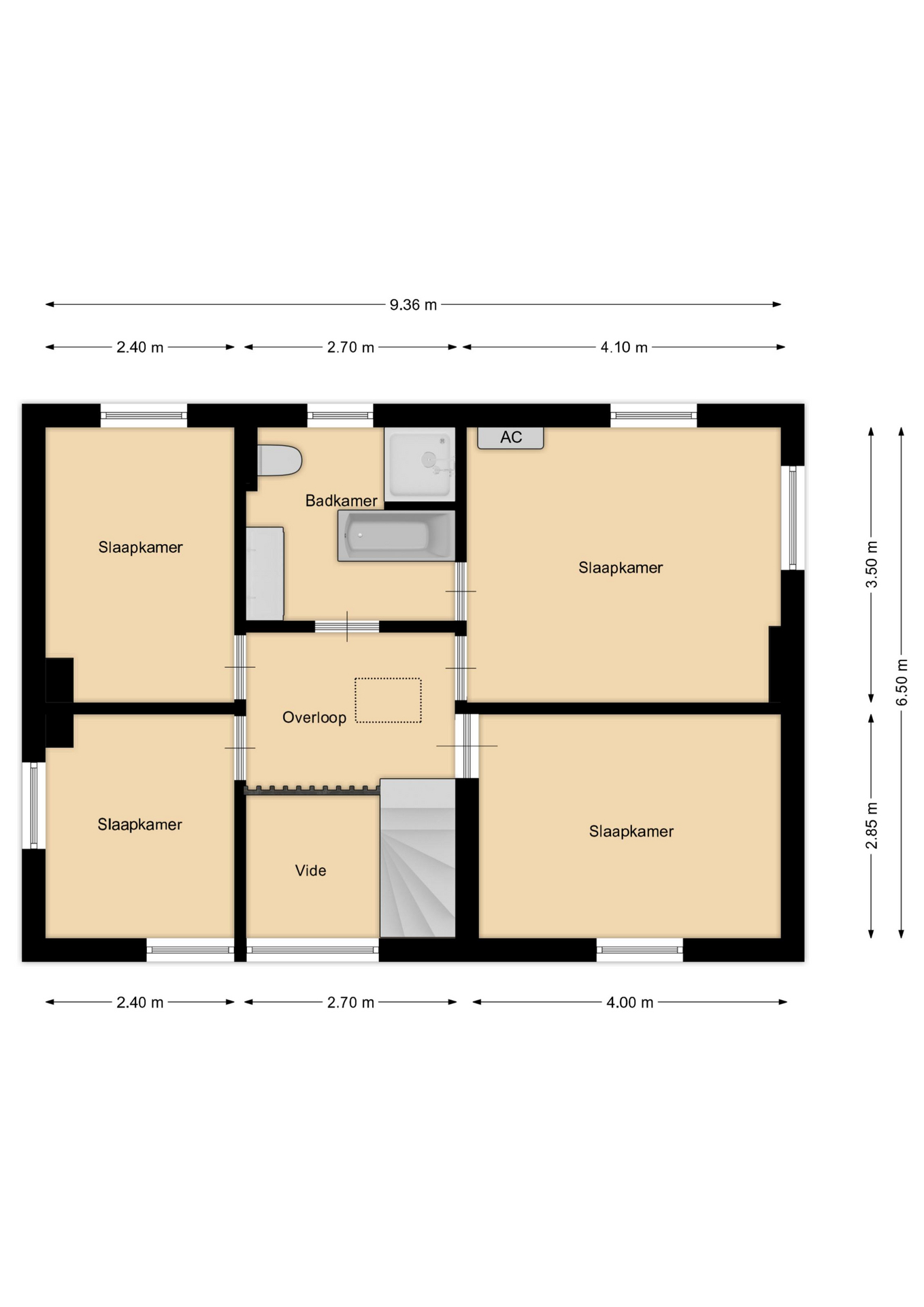
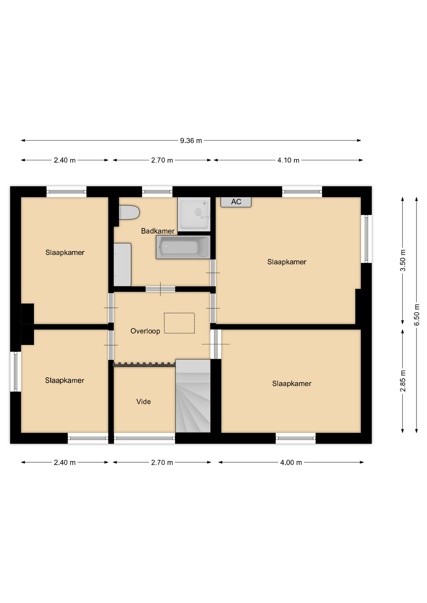
First floor:
The spacious passage leads to four comfortable bedrooms (approx. 6.7, 8.5, 11.5 and 14.5 m²). The walk-in closet room and the office are equipped with custom-made, stylish built-in cupboards from Slangen Interieurbouw. The other rooms are also practically furnished. The bathroom features mechanical ventilation and is equipped with a bathtub, a walk-in shower, a double sink, and a wall-mounted toilet. All rooms have aluminium window frames with HR++ glazing and are stylishly fitted with mosaic parquet flooring.

Second floor:
A loft ladder leads to the attic, which is ideal for extra storage. The roof has been fully insulated with Kingspan Unidek in 2022.

Garden:
The beautifully landscaped and enclosed city garden faces northeast and offers plenty of privacy. Thanks to the awning, the garden forms a natural extension of the living space. At the front is an attractive front garden with evening sun. The back garden also has a practical external storage room of approx. 5.3 m². The garden also has a back entrance.

Details:
- Detached house with indoor garage and large basement;
- Living area approx. 140m² excluding basement and attic;
- Stylish finish with oak parquet flooring (ground floor) and mosaic parquet (first floor)
- Aluminium window frames with HR++ glazing and blue stone window sills;
- Roller insect screen or door in each room;
- Intercom with camera (2022) and Itho Daalderop mechanical ventilation (2022);
- Roof insulation (Kingspan Unidek, 2022);
- Faber gas fireplace in living room, serviced annually;
- Two air conditioners (living room and master bedroom);
- Designer radiators on the ground floor;
- Partially equipped with electric shutters on the ground floor;
- Luxury kitchen with 5-zone induction hob, ceiling extractor, coffee machine and convection oven;
- Four bedrooms and a spacious bathroom with underfloor heating;
- Sunny, enclosed city garden facing northeast and green front garden with evening sun;
- External storage shed in the garden of approx. 5.3m²;
- Stylish custom-made cupboards by Slangen Interieurbouw;
- Quiet location in the sought-after Sint Pieter neighbourhood, within walking distance of nature and the city centre;
- All dimensions are indicative and no rights can be derived from them.

Environment:
The property is located in Jekerdal-Sint Pieter, a very popular residential area in Maastricht. The neighbourhood is close to the city centre but also borders the Sint Pietersberg and Jekerdal nature reserves. The city centre is approximately a 10-minute walk away. Shops for daily groceries are located in Sint Pieter on Glacisweg and the Carré shopping centre on Bieslanderweg/Tongerseweg, which includes Albert Heijn and Action. The primary school (Bergweg) as well as medical facilities such as a physiotherapist, pharmacy and medical centre are all within walking distance. The property is within cycling distance of the MECC, MUMC, the provincial government building and is conveniently located for access to major roads. There is ample parking on public roads, both paid parking and parking for permit holders.

Features

Air conditioning
Transfer of ownership
Asking Price
€ 1.095.000 k.k.
Status
verkocht onder voorbehoud
Acceptance
in overleg
Construction
Kind of house
Eengezinswoning
Building type
vrijstaande woning
Construction period
1969
Energy rating
E
Roof type
zadeldak
Bedrooms
4
Bathrooms
0
Surface Areas And Volume
Living Area
140 m2
Other indoor space
94 m2
Exterior space attached to the buildinge
1 m2
External storage space
5 m2
Volume in cubic meters
805 m3
Plot Size
273 m2
Facilities
Mechanische ventilatie
Rolluiken
Airconditioning
Schuifpui
In woonwijk
Baerz & Co Property Brochure

Brochure

Videos

Floor Plans

Damen Makelaardij

Ambyerstraat-Noord 72
6225 EG Maastricht

k.kruse@damen-og.nl
+31 433479090

www.damen-og.nl

Information / Viewing request

Kenneth Kruse profile image
Kenneth Kruse
NVM MAKELAAR - RM/RT

Buying a Luxury Property in Maastricht

Maastricht offers a sophisticated lifestyle with elegant properties, vibrant cultural experiences, and seamless international connections. The city attracts a discerning community, supported by expert advisory services, fostering both discretion and dynamic living.