La finca Hellouw se erige como una presencia discreta pero sugestiva en el margen del pueblo de Betuwe, con una historia que data de 1917 impregnando cada detalle cuidadosamente concebido. Esta propiedad, sobre una parcela de 4.910 m², ofrece 403 m² de superficie habitable, cinco dormitorios y dos baños. Las amplias proporciones y elementos originales definen los interiores, donde las chimeneas de piedra arenisca y las vigas de madera aportan calidez y carácter a los espacios de estar. La planta baja incluye un amplio salón orientado al jardín en el antiguo granero, una cocina campestre con baldosas antiguas, bodega y un conjunto de habitaciones a nivel del suelo: dormitorio con chimenea, vestidor y despacho, todas con vistas al terreno privado.
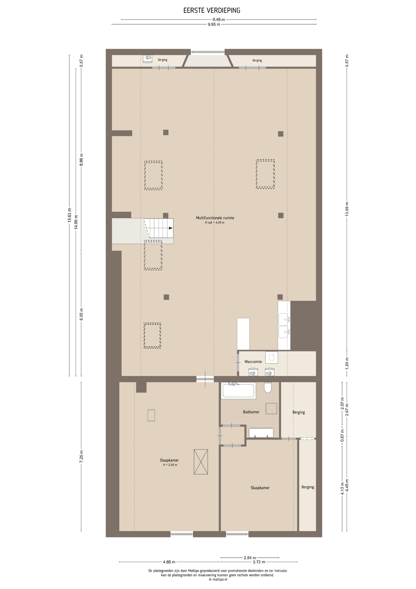
Sobre el ala trasera, la primera planta alberga un loft diáfano con una altura de cumbrera de 4,5 metros y una despensa, mientras que el ala delantera cuenta con dos dormitorios adicionales y un baño. La comodidad está en el centro de cada aspecto: calefacción por suelo radiante, aire acondicionado, ventilación mecánica y aislamiento con doble acristalamiento.
El entorno exterior ha sido diseñado pensando tanto en la privacidad como en la sostenibilidad. Jardines de flores, sauces maduros, un huerto con manzanos, perales, ciruelos y membrillos, y una charca rodeada de bosque aportan un ambiente de parque frecuentado por la fauna local. El edificio auxiliar aislado, con estufa de leña y puertas francesas, abre nuevas posibilidades, ya sea como taller, alojamiento para invitados o despacho privado.
La ubicación de Hellouw en la región de Betuwe ofrece una inmersión serena en la vida rural, rodeada de reservas naturales y rutas fluviales. Sin embargo, las comodidades diarias y centros urbanos como Gorinchem y Utrecht permanecen fácilmente accesibles. Esta finca funde historia, paisaje y privacidad con una naturalidad elegante, respondiendo a la búsqueda de autenticidad y espacio en el corazón de los Países Bajos.
Explora Hellouw con Baerz, tu asesor y buscador personal de propiedades de confianza
El mercado cerrado de la zona recompensa el conocimiento local y la negociación paciente. Los asesores regionales aportan acceso a oportunidades fuera de mercado, dominio de los requisitos de conservación y capacidad para gestionar operaciones internacionales complejas. Una representación experta es vital para acuerdos que respeten la normativa local y los estándares internacionales.
Evite errores comunes
Los compradores internacionales a menudo desperdician tiempo valioso navegando por anuncios duplicados, desactualizados o engañosos, especialmente porque casi el 30% de las propiedades de lujo nunca aparecen en el mercado.
Los agentes del vendedor representan los intereses del vendedor, no los suyos, y simplemente solicitar información sobre una propiedad puede hacer que las agencias lo registren como su “cliente” sin su consentimiento.
Con Baerz Property Finders & Advisors, evita completamente estos problemas.
Actuamos únicamente en su nombre, ofreciendo representación independiente, orientación transparente y acceso a todas las propiedades disponibles, incluidas oportunidades privadas y fuera de mercado que otros nunca ven.
¿Le gustaría saber cómo asegurar su propio Asesor Personal de Propiedades? Contáctenos para descubrir cómo podemos representar sus intereses y abrirle el mercado completo.