Ons kantoor is lid van Baerz & Co Luxury Homes; een internationaal platform dat exclusieve woningmakelaars met elkaar verbindt. Neem contact op met ons secretariaat voor meer informatie over het landelijke aanbod, waarvan u hieronder een selectie kunt bekijken.

VALKENBURG
Voorschoterweg 71 B - 2235 SG
Les Pays-Bas

Frits Wilbrink profile image
Frits Wilbrink
Real estate agent
€1,175,000 k.k.
Surface habitable
162m2
Superficie du terrain
655m2
Chambres
3

Description

Cette villa semi-mitoyenne à Valkenburg bénéficie d’un emplacement privilégié en bord d’eau, offrant un cadre de vie paisible au cœur même de la Randstad. La propriété propose 162 m² d’espaces intérieurs raffinés sur une parcelle de 655 m², magnifiés par un jardin paysager conçu par un architecte et un ponton privé de dix mètres sur l’Ancienne Rhin, ouvrant un accès facile vers Leyde et les lacs de Kagerplassen. Depuis la terrasse ensoleillée située à l’arrière, il suffit de quelques pas pour rejoindre l’eau, faire du bateau devient un plaisir quotidien et le lac de Valkenburg se trouve à distance de marche.

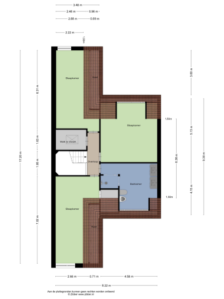
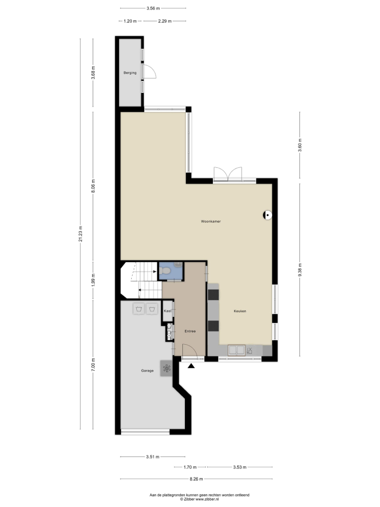
À l’intérieur, la villa s’ouvre sur un vaste hall qui mène à un salon baigné de lumière. De grandes baies vitrées et portes-fenêtres offrent une vue à couper le souffle sur le jardin et l’eau, sublimées par une cheminée à gaz et un chauffage au sol couvrant tout le rez-de-chaussée. La cuisine s’organise en véritable cœur de vie où se conjuguent préparation culinaire et convivialité, tandis que le garage attenant est équipé d’une porte électrique et de raccordements pratiques. À l’étage, trois chambres et une salle de bains de luxe rénovée en 2022 avec chauffage au sol et douche à l’italienne composent l’espace nuit. Un dressing et un vaste grenier ajoutent une grande flexibilité, la création éventuelle d’une quatrième chambre étant tout à fait envisageable.

Les jardins aménagés à l’avant et à l’arrière offrent ombre et ensoleillement, rehaussés par un système d’arrosage automatique, un cabanon au bord de l’eau et la garantie de trois places de stationnement privatives. Dotée du label énergétique B, de vitrages HR++ et de finitions sécurisées, la maison allie confort et sérénité. Cette villa de standing en vente à Valkenburg n’est qu’à quelques minutes du centre de Leyde, proche des écoles internationales et à moins de vingt minutes d’Amsterdam, de Schiphol et de La Haye, idéalement reliée pour la vie familiale et professionnelle. Ici, l’espace, la lumière et la discrète présence de l’eau définissent l’art de vivre.

Découvrez Valkenburg avec Baerz, votre conseiller et chasseur immobilier personnel de confiance

S'appuyer sur une expertise locale s’avère essentiel, eu égard à la diversité architecturale, aux réglementations de préservation et à l’accès discret aux biens hors marché. Les consultants chevronnés apportent vision sur l’histoire et le potentiel des quartiers, garantissant un accès privilégié à des biens exclusifs. Leur réseau et leurs compétences en négociation, notamment avec des architectes du patrimoine, constituent un réel atout pour des transactions fluides et stratégiques.

Évitez les pièges courants

Les acheteurs internationaux perdent souvent un temps précieux à naviguer entre des annonces en ligne dupliquées, obsolètes ou trompeuses, d’autant que près de 30% des propriétés de luxe ne sont jamais mises sur le marché.
Les agents du vendeur représentent les intérêts du vendeur, pas les vôtres, et une simple demande d’information peut entraîner votre inscription comme “client” auprès d’une agence sans votre consentement.
Avec Baerz Property Finders & Advisors, vous évitez totalement ces écueils.
Nous agissons exclusivement en votre nom, en vous offrant une représentation indépendante, des conseils transparents et un accès à toutes les propriétés disponibles, y compris les opportunités privées et off-market que les autres ne voient jamais.

Curieux de savoir comment obtenir votre propre Conseiller Immobilier Personnel ? Contactez-nous pour découvrir comment nous pouvons défendre vos intérêts et vous ouvrir l’accès à l’ensemble du marché.

Caractéristiques

Alarm system
Transfert de propriété
Prix demandé
€ 1.175.000 k.k.
Statut
beschikbaar
Acceptation
in overleg
Construction
Type de maison
Villa
Type de bâtiment
halfvrijstaande woning
Période de construction
1992
Classe énergétique
B
Type de toit
samengesteld dak
Chambres
3
Salles de bains
1
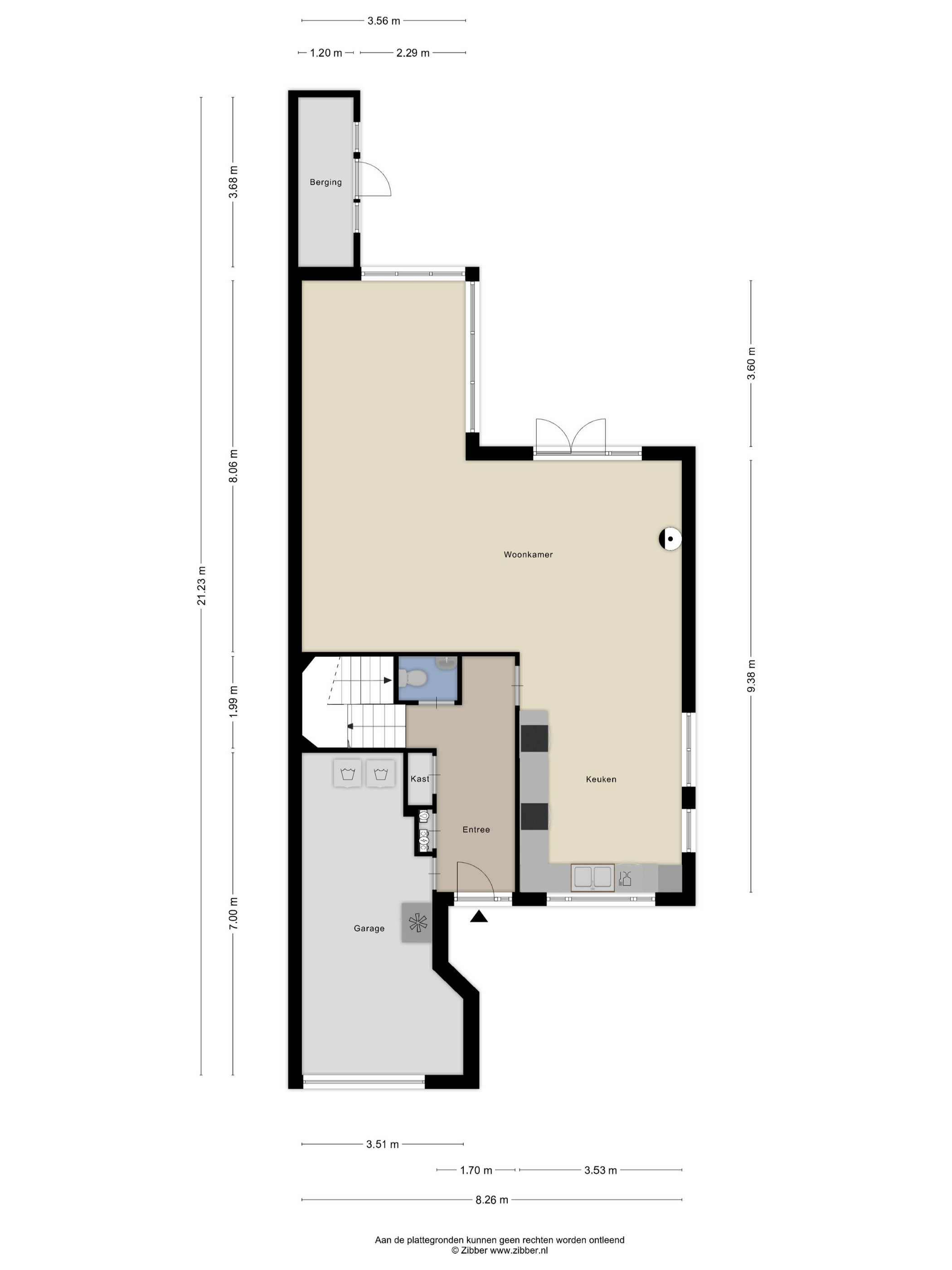
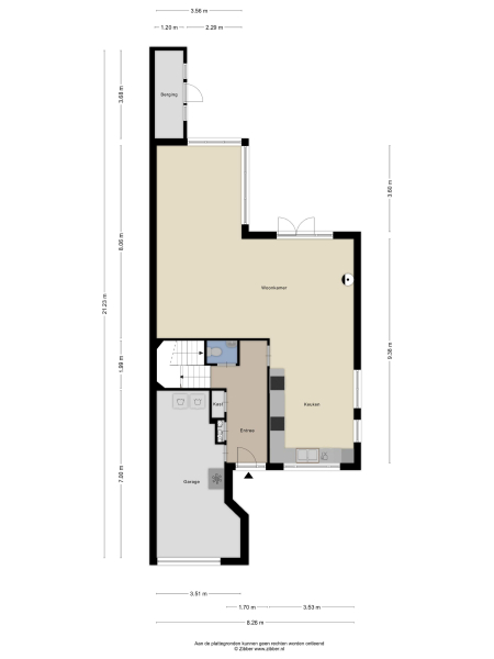
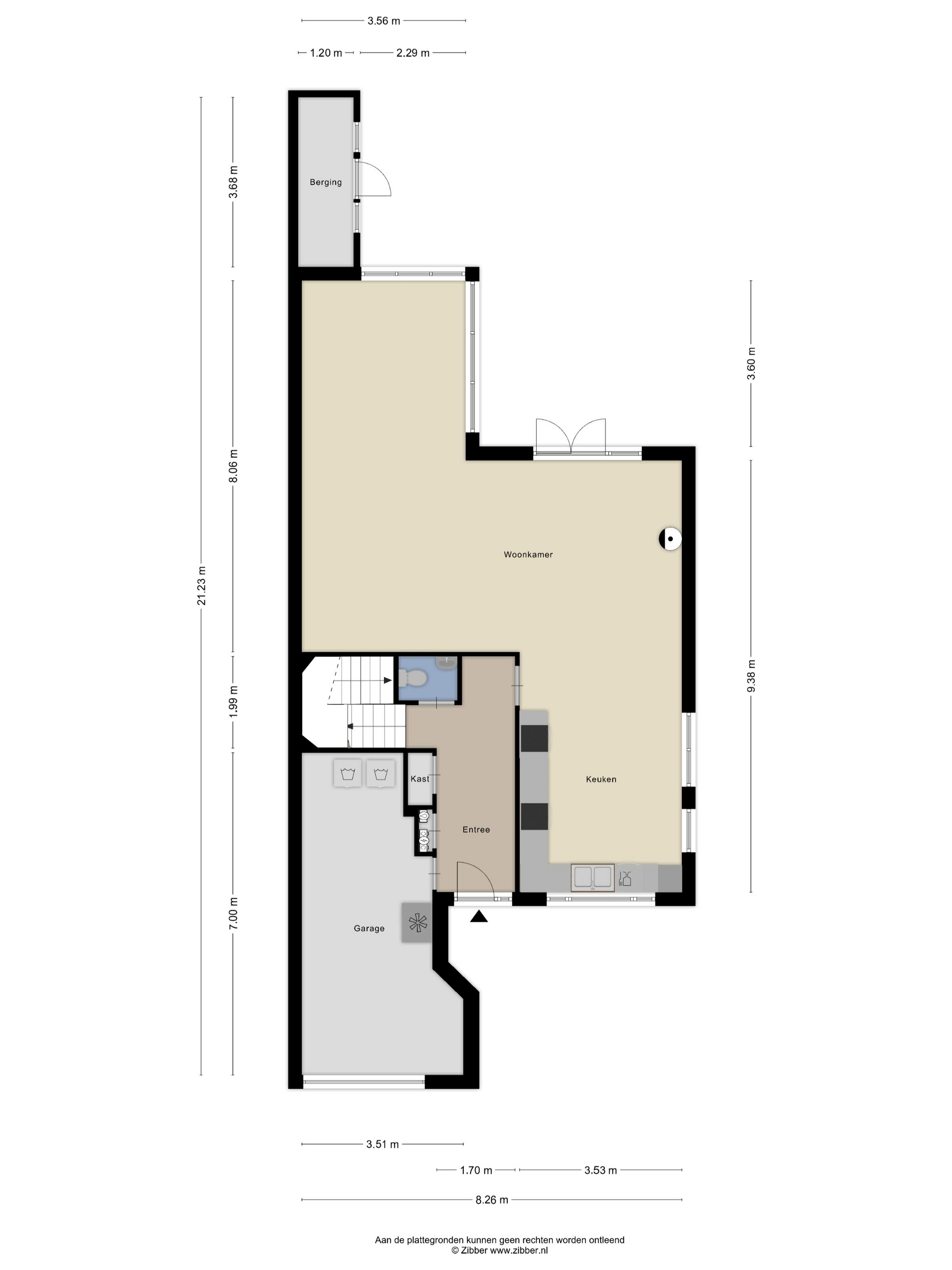
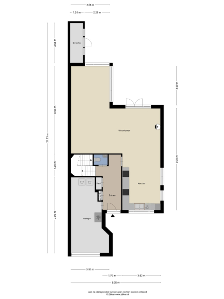
Surfaces et volumes
Surface habitable
162 m2
Autre espace intérieur
43 m2
Volume en mètres cubes
760 m3
Superficie du terrain
655 m2
Équipements
Mechanische ventilatie
Alarminstallatie
Tv kabel
Buitenzonwering
Rookkanaal
Aan water
Beschutte ligging
Buiten bebouwde kom
Aan vaarwater
Baerz & Co Property Brochure

Brochure

Vidéos

Plans

Wilbrink & v.d. Vlugt Makelaars

Heereweg 231
2161 BG Lisse

info@wilbrinkvandervlugt.nl
+31 252 41 90 49

www.onsaanbod.nl

Demande d'information / de visite

Frits Wilbrink profile image
Frits Wilbrink
Real estate agent