Ons kantoor is lid van Baerz & Co Luxury Homes; een internationaal platform dat exclusieve woningmakelaars met elkaar verbindt. Neem contact op met ons secretariaat voor meer informatie over het landelijke aanbod, waarvan u hieronder een selectie kunt bekijken.

VENLO
Monseigneur Boermansstraat 11 - 5911 BA
Les Pays-Bas

Don Willems profile image
Don Willems
Makelaar
€898,750 k.k.
Surface habitable
225m2
Superficie du terrain
240m2
Chambres
5

Description

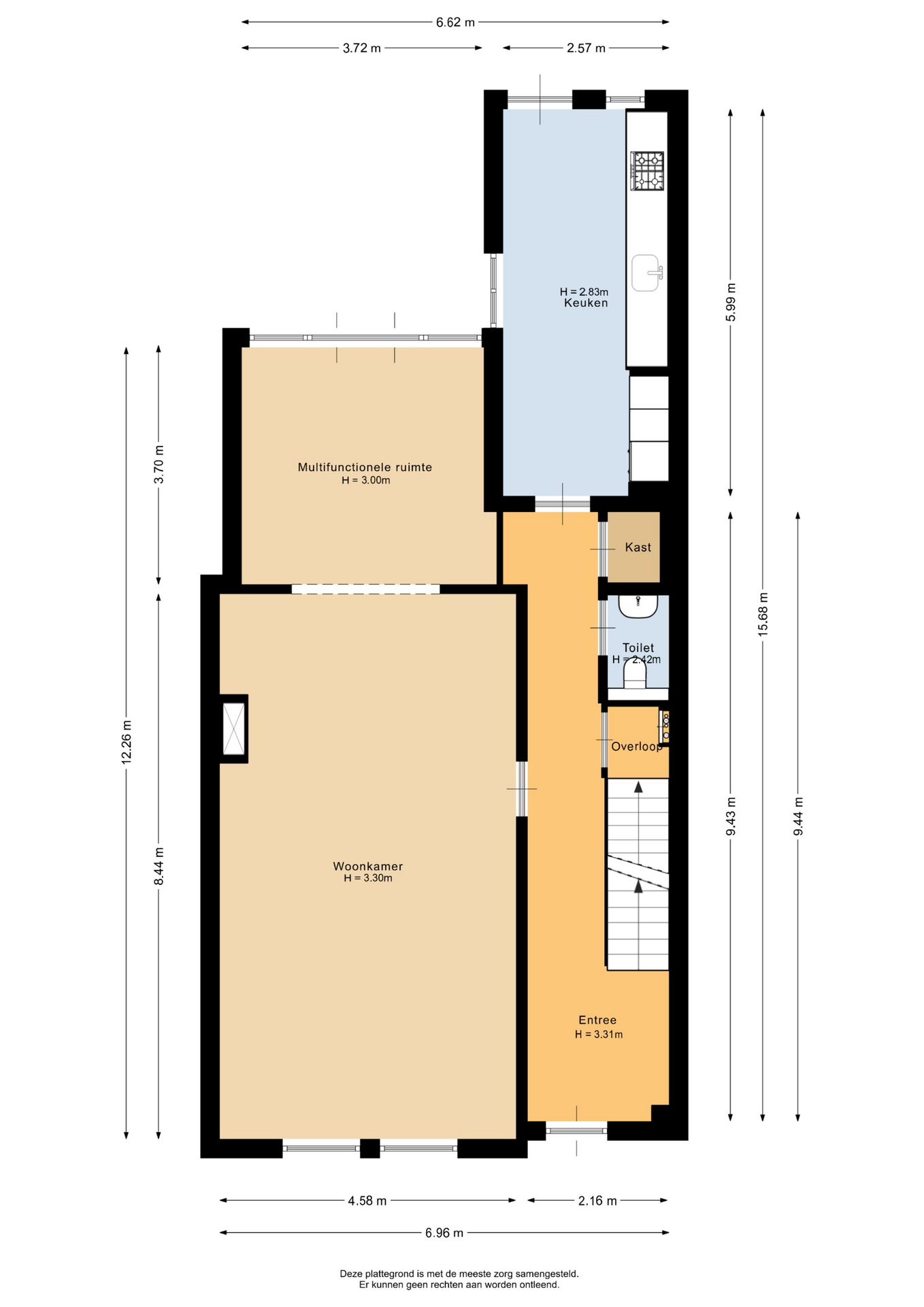
La Townhouse Venlo incarne magnifiquement l’architecture des années 1920 au cœur de la ville, mêlant caractère historique, confort contemporain et vue privilégiée sur le Rosarium. Cette résidence de 225 m², répartie sur trois niveaux, offre cinq chambres, deux salles de bains et une lumière naturelle abondante dans chaque espace. Du vaste hall d'entrée orné de carreaux en marbre Bianco Carrara à la pièce de vie spacieuse habillée d’un parquet à bâtons rompus en chêne français, chaque détail exprime raffinement discret et authenticité.

Le niveau principal jouit de vues dégagées sur le Rosarium, sublimées par de hauts plafonds ornés d’éléments d'origine, une cheminée au gaz et une technologie intégrée en toute élégance comprenant climatisation et éclairage modulable. Les portes-fenêtres à l’arrière s’ouvrent sur un jardin conceptualisé par un architecte paysagiste, véritable havre privé composé de plusieurs terrasses, d’un deck en bois Padouk, d'un patio pavé et d’une piscine chauffée, le tout ceint de murs pour une intimité absolue à quelques minutes du centre de Venlo.

À l’étage, la suite parentale généreuse donne sur un balcon dominant les jardins urbains, tandis que les espaces modulables peuvent accueillir des chambres supplémentaires ou un bureau. Les salles de bains, rénovées avec plancher chauffant et équipements haut de gamme, créent une atmosphère de luxe discret. La performance énergétique est assurée par un label A++, quinze panneaux solaires produisant 6 000 kWh, une pompe à chaleur et un triple vitrage, rare pour une propriété de ce standing.

Alliant praticité et atmosphère—une cave pour le rangement, plancher chauffant dans les salles de bains, climatisation, possibilité de louer un garage—ce luxueux townhouse à vendre à Venlo propose une vie citadine raffinée, où se conjuguent design, intimité et confort au quotidien.

Découvrez Venlo avec Baerz, votre conseiller et chasseur immobilier personnel de confiance

Les transactions haut de gamme requièrent une connaissance approfondie du stock local, des règles d’urbanisme et des projets futurs. Les conseillers expérimentés proposent un accès privilégié aux biens confidentiels et excelleront dans la négociation discrète pour vous placer en amont des tendances. Leur accompagnement est essentiel pour sécuriser les demeures les plus remarquables ou garantir des conditions d’investissement optimales.

Évitez les pièges courants

Les acheteurs internationaux perdent souvent un temps précieux à naviguer entre des annonces en ligne dupliquées, obsolètes ou trompeuses, d’autant que près de 30% des propriétés de luxe ne sont jamais mises sur le marché.
Les agents du vendeur représentent les intérêts du vendeur, pas les vôtres, et une simple demande d’information peut entraîner votre inscription comme “client” auprès d’une agence sans votre consentement.
Avec Baerz Property Finders & Advisors, vous évitez totalement ces écueils.
Nous agissons exclusivement en votre nom, en vous offrant une représentation indépendante, des conseils transparents et un accès à toutes les propriétés disponibles, y compris les opportunités privées et off-market que les autres ne voient jamais.

Curieux de savoir comment obtenir votre propre Conseiller Immobilier Personnel ? Contactez-nous pour découvrir comment nous pouvons défendre vos intérêts et vous ouvrir l’accès à l’ensemble du marché.

Caractéristiques

Piscine
Panneaux solaires
Climatisation
Transfert de propriété
Prix demandé
€ 898.750 k.k.
Statut
beschikbaar
Acceptation
in overleg
Construction
Type de maison
Herenhuis
Type de bâtiment
tussenwoning
Période de construction
1926
Classe énergétique
A++
Type de toit
samengesteld dak
Chambres
5
Salles de bains
2
Surfaces et volumes
Surface habitable
225 m2
Autre espace intérieur
36 m2
Espace extérieur attenant au bâtiment
2 m2
Volume en mètres cubes
807 m3
Superficie du terrain
240 m2
Équipements
Mechanische ventilatie
Zwembad
Airconditioning
Dakraam
Zonnepanelen
Aan rustige weg
In centrum
Baerz & Co Property Brochure

Brochure

Vidéos

VeTeBe

Grotestraat 84a
5931 CX Tegelen

info@vetebe.nl
+31 77 3262600

www.vetebe.nl

Demande d'information / de visite

Don Willems profile image
Don Willems
Makelaar