Ons kantoor is lid van Baerz & Co Luxury Homes; een internationaal platform dat exclusieve woningmakelaars met elkaar verbindt. Neem contact op met ons secretariaat voor meer informatie over het landelijke aanbod, waarvan u hieronder een selectie kunt bekijken.

MAASTRICHT
Observantenweg 61 - 6212 EP
Nederland

Kenneth Kruse profile image
Kenneth Kruse
NVM MAKELAAR - RM/RT
€1.095.000 k.k.
Woonoppervlakte
140m2
Perceeloppervlakte
273m2
Slaapkamers
4

Omschrijving

Stijlvol vrijstaand woonhuis met garage, stadstuin en hoogwaardige afwerking op toplocatie in Sint Pieter.

Aan de geliefde en rustige Observantenweg, aan de voet van de Sint-Pietersberg en op loopafstand van het historische centrum van Maastricht, bevindt zich dit uitstekend onderhouden en smaakvol gemoderniseerde vrijstaande woonhuis. De woning beschikt over een inpandige garage, vier slaapkamers, een zonnige stadstuin én een externe berging. Door de royale raampartijen, stijlvolle afwerking en slimme indeling is dit een uiterst comfortabele gezinswoning op een van de mooiste plekken van de stad.

De woning is in 2010 uitgebreid en volledig gemoderniseerd met hoogwaardige, duurzame materialen. Recent zijn diverse belangrijke voorzieningen vernieuwd, zoals dakisolatie (2022), mechanische ventilatie, een intercom met camera en airconditioning. Dankzij de combinatie van moderne techniek, esthetische keuzes en een rustige ligging is dit een instapklare woning met veel comfort.

INDELING

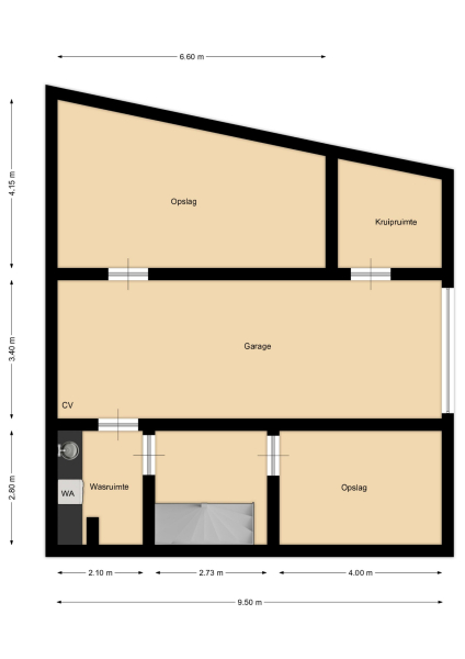
Souterrain:
De woning is volledig onderkelderd en biedt meerdere functionele ruimtes. De royale garage (ca. 33m²) heeft een elektrische sectionaalpoort en directe toegang tot een praktische wasruimte met witgoedaansluitingen, een voorraadkelder en een ruime opslagruimte (ca. 20m²). Ook de cv-opstelling is gerealiseerd in de kelder (Nefit HR Topline, eigendom uit 2010).

Begane grond:
Via de representatieve entree met een stijlvolle garderobe kast, open vide en toegang tot het gastentoilet met wandcloset en fonteintje, de meterkast en de lichte, royale leefruimte (ca. 68m²). De woonkamer is voorzien van een sfeervolle Faber gashaard die jaarlijks wordt onderhouden en op koude dagen zorgt voor extra warmte en sfeer. De designradiatoren en fraaie parketvloer geven de ruimte extra stijl.

De open keuken met groot kookeiland is uitgevoerd in een luxe, greeploze opstelling en voorzien van hoogwaardige inbouwapparatuur: een 5-zone inductiekookplaat, plafondafzuiging, vaatwasser, volautomatisch koffiesysteem, heteluchtoven, koelkast en spoelbak.

Via de schuifpui aan de voorzijde komt u in de gezellige, groene voortuin, een heerlijke plek om van de avondzon te genieten. Aan de achterzijde geven openslaande deuren toegang tot de beschutte stadstuin op het noordoosten, met zonnescherm en meerdere zitplekken.

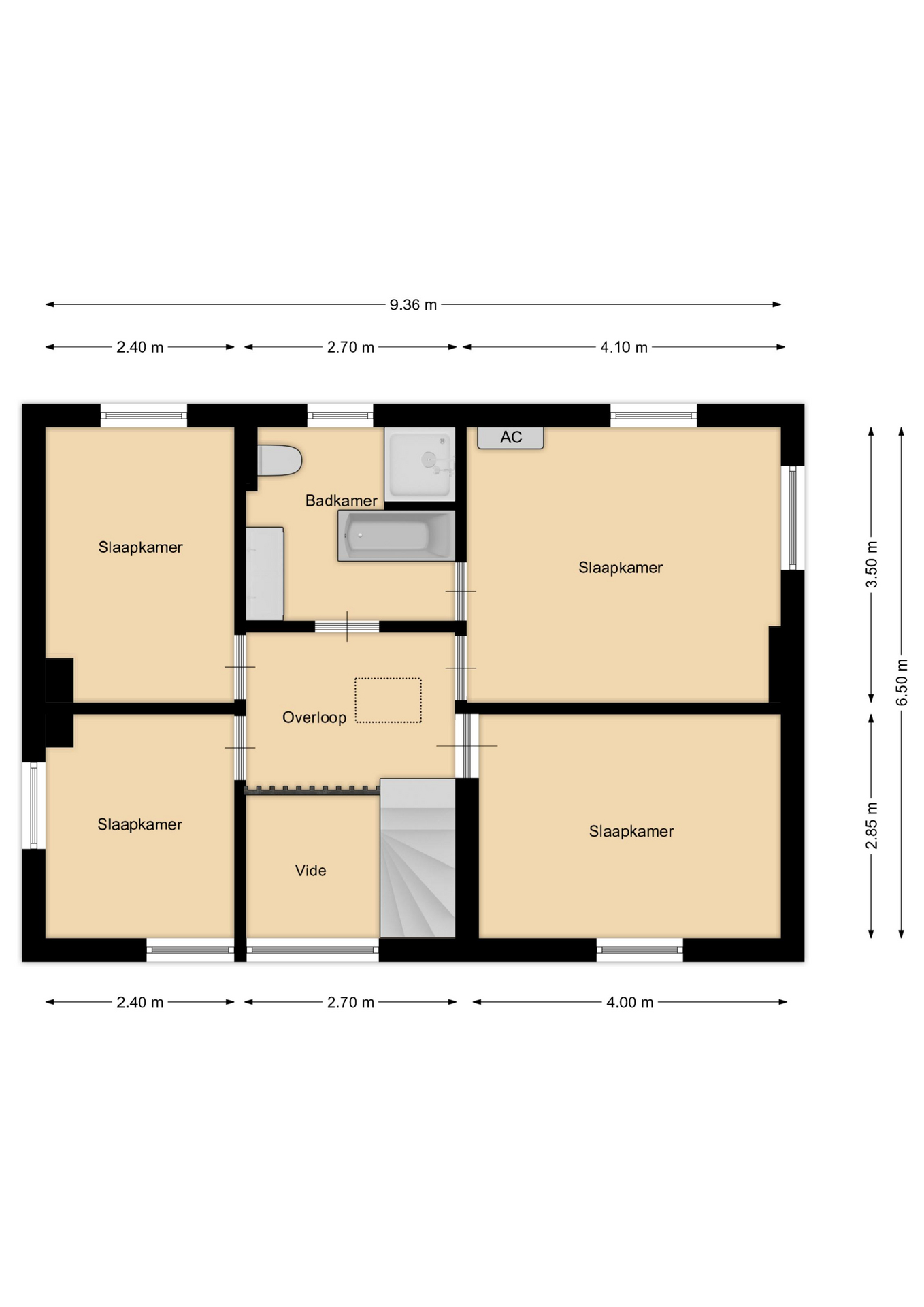
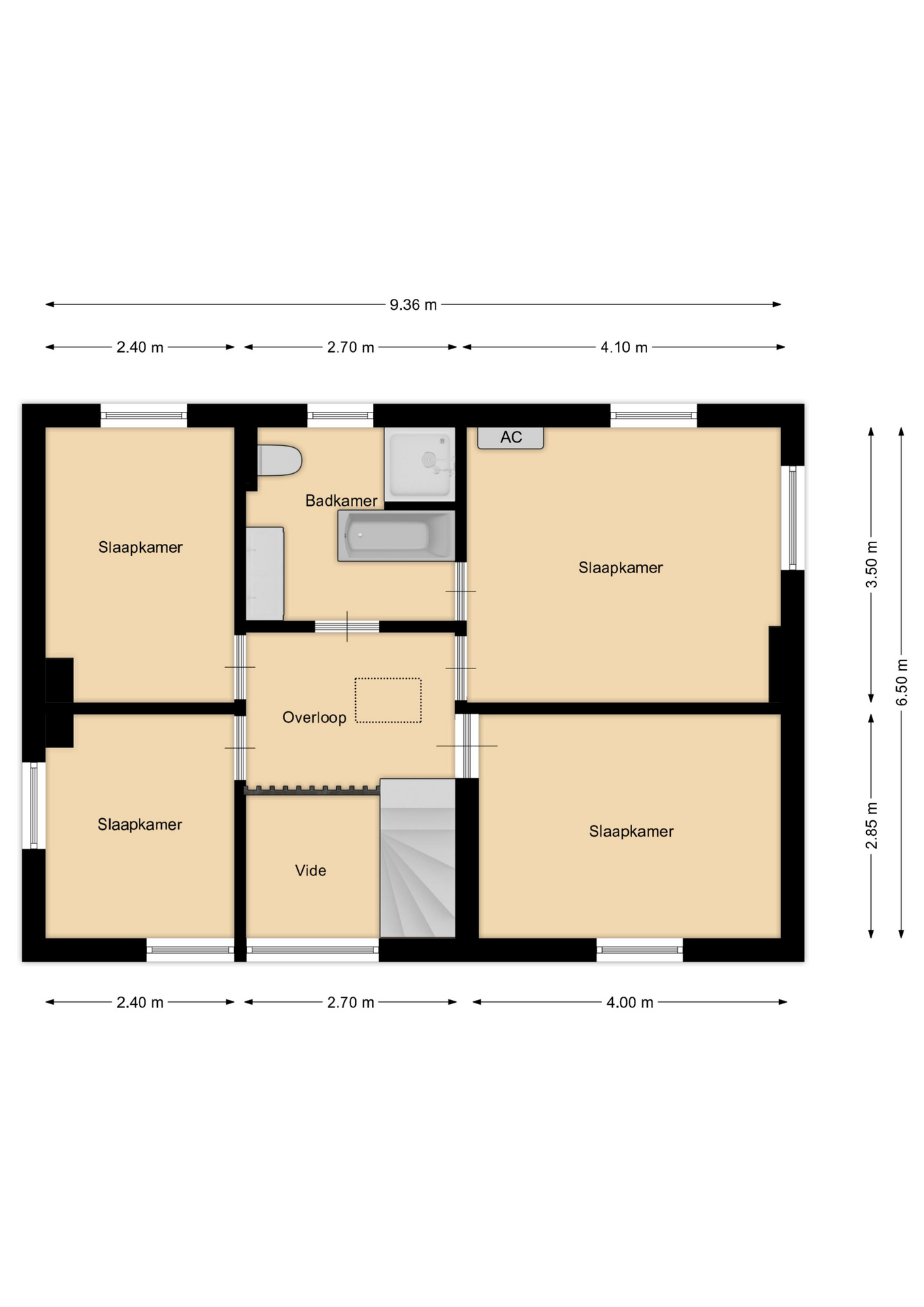
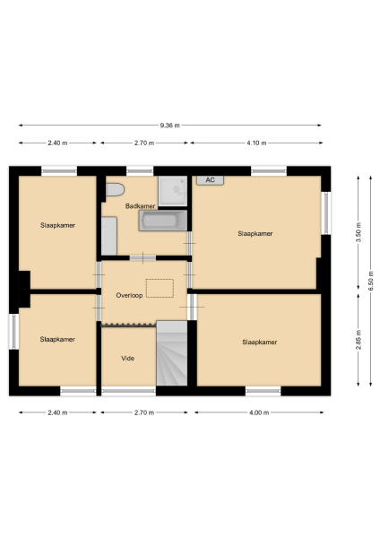
Eerste verdieping:
De ruime overloop leidt naar vier comfortabele slaapkamers (ca. 6.7, 8.5, 11.5 en 14.5m²). De inloopkastenkamer en het kantoor zijn uitgerust met op maat gemaakte, stijlvolle inbouwkasten van Slangen Interieurbouw. De overige kamers zijn eveneens praktisch ingericht. De badkamer beschikt over mechanische ventilatie en is uitgerust met een ligbad, inloopdouche, dubbele wastafel en een wandcloset. Alle kamers zijn voorzien van aluminium kozijnen met HR++ beglazing en stijlvol uitgerust met een mozaïek parketvloer.

Tweede verdieping:
Via een vlizotrap bereikt u de bergzolder, ideaal voor extra opslag. Het dak is in 2022 volledig geïsoleerd met Kingspan Unidek.

Tuin:
De fraai aangelegde en omsloten stadstuin ligt op het noordoosten en biedt veel privacy. De tuin vormt, mede dankzij het zonnescherm, een natuurlijk verlengstuk van de woonruimte. Aan de voorzijde bevindt zich een sfeervolle voortuin met avondzon. In de achtertuin is tevens een praktische externe berging van ca. 5,3m² aanwezig. Tevens beschikt de tuin over een achterom.

Bijzonderheden:
- Vrijstaand woonhuis met inpandige garage en volledig souterrain;
- Woonoppervlak ca. 140m² exclusief souterrain en bergzolder;
- Stijlvolle afwerking met eiken parketvloer (begane grond) en mozaïek parket (verdieping)
- Aluminium kozijnen met HR++ beglazing en blauwe steen vensterbanken;
- Per vertrek een rol hor of een deur:
- Intercom met camera (2022) en Itho Daalderop mechanische ventilatie (2022);
- Dakisolatie (Kingspan Unidek, 2022);
- Faber gashaard in woonkamer, jaarlijks onderhouden;
- Twee airco's (woonkamer en hoofdslaapkamer);
- Designradiatoren op de begane grond;
- Deels voorzien van elektrische rolluiken aan de begane grond;
- Luxe keuken met o.a. 5-zone inductiekookplaat, plafondafzuiging, koffiemachine en heteluchtoven;
- Vier slaapkamers en een ruime badkamer met vloerverwarming;
- Zonnige, omsloten stadstuin op het noordoosten en groene voortuin met avondzon;
- Externe berging in de tuin van ca. 5,3m²;
- Stijlvolle maatwerkkasten van Slangen Interieurbouw;
- Rustige ligging in gewilde wijk Sint Pieter, op loopafstand van natuur en binnenstad;
- Alle afmetingen zijn indicatief en kunnen geen rechten aan worden ontleend.

Omgeving
De woning ligt te Jekerdal-Sint Pieter, een zeer geliefde woonwijk in Maastricht. De wijk ligt nabij het centrum van de stad maar ook grenzend aan de natuurgebieden Sint Pietersberg en Jekerdal. De loopafstand tot het centrum bedraagt ca. 10 minuten. De winkels voor de dagelijkse boodschappen bevinden zich te Sint Pieter aan de Glacisweg en het winkelcentrum Carré aan de Bieslanderweg/Tongerseweg met o.a. Albert Heijn en Action. De lagere school (Bergweg) maar ook de medische voorzieningen zoals fysiotherapeut, apotheek en een medisch centrum liggen allemaal op loopafstand. De woning ligt op fietsafstand van het MECC, MUMC, het provinciehuis en is prima gelegen ten opzichte van de uitvalswegen. Er is voldoende parkeergelegenheid op de openbare weg zowel betaald parkeren als parkeren voor vergunninghouders.

Speciale Kenmerken

Air conditioning

Kenmerken

Overdracht
Vraagprijs
€ 1.095.000 k.k.
Status
verkocht onder voorbehoud
Aanvaarding
in overleg
Bouw
Soort woonhuis
Eengezinswoning
Soort bouw
vrijstaande woning
Bouwjaar
1969
Energieklasse
E
Soort dak
zadeldak
Slaapkamers
4
Badkamers
0
Oppervlakten en inhoud
Woonoppervlakte
140 m2
Overige inpandige ruimte
94 m2
Gebouwgebonden buitenruimte
1 m2
Externe bergruimte
5 m2
Inhoud
805 m3
Perceeloppervlakte
273 m2
faciliteiten
Mechanische ventilatie
Rolluiken
Airconditioning
Schuifpui
In woonwijk
Baerz & Co Property Brochure

Brochure

Video’s

Plattegronden

Damen Makelaardij

Ambyerstraat-Noord 72
6225 EG Maastricht

k.kruse@damen-og.nl
+31 433479090

www.damen-og.nl

Informatie / bezichtigingsaanvraag

Kenneth Kruse profile image
Kenneth Kruse
NVM MAKELAAR - RM/RT