Ons kantoor is lid van Baerz & Co Luxury Homes; een internationaal platform dat exclusieve woningmakelaars met elkaar verbindt. Neem contact op met ons secretariaat voor meer informatie over het landelijke aanbod, waarvan u hieronder een selectie kunt bekijken.

NISTELRODE
Wilhelminastraat 3 - 5388 EP
Нидерланды

Bram Van der Wielen profile image
Bram Van der Wielen
Owner, MMCEPI register makelaar
€1,295,000 k.k.
Жилая площадь
304m2
Размер участка
649m2
Спальни
4

Описание

Вилла Nistelrode устанавливает новую планку современного образа жизни, сочетая 304 м² изысканного пространства с классом энергоэффективности A+++ в одном из самых уединённых жилых анклавов района. Эта недавно построенная вилла олицетворяет сдержанную роскошь, гармонируя продуманный дизайн с передовыми экологичными решениями, такими как геотермальный тепловой насос, солнечные панели, остекление HR++ и полная изоляция. Надёжно спрятанная за архитектурным садом, резиденция предлагает редкую приватность в непосредственной близости от инфраструктуры, природы и ключевых транспортных артерий.

В центре дома расположена просторная кухня-гурме, выполненная из лучших материалов и оснащённая высокотехнологичной техникой, плавно переходящая в наполненную солнцем гостиную. Тёплый пол, передовая система вентиляции и цельное, устойчивое к царапинам покрытие создают особое ощущение уюта и спокойствия. Четыре просторные спальни включают главный люкс с гардеробной; в основной ванной комнате предусмотрена глубокая ванна, индивидуальная мебель и душевая кабина. Второй этаж предусматривает возможность организации дополнительных спален по желанию владельцев.

Помимо главного дома, утеплённый гостевой дом с баром и санузлом открывает различные варианты использования: от личного кабинета до зоны отдыха. Внешнее пространство дополнено крытой кухней и джакузи, окружёнными зрелыми зелёными насаждениями. Вилла Nistelrode — образец роскошной недвижимости для продажи в Nistelrode, предлагающая перспективное и комфортное жизненное пространство для ценителей площади, мастерства и инновационного дизайна.

Исследуйте Нистелроде с Baerz, вашим надежным личным консультантом по недвижимости

Без опытного советника доступ к закрытому рынку Нистелроде крайне затруднён. Большинство топ-сделок проходит вне официальных площадок, требует экспертизы с глубоким знанием локации и мировых стандартов. Все нюансы — зонирование, реставрация памятников, переговоры — регулируют компетентные брокеры, обеспечивая уникальные объекты и выгодные условия.

Избегайте распространенных ошибок

Международные покупатели часто тратят драгоценное время на дублирующиеся, устаревшие или вводящие в заблуждение онлайн-объявления, особенно учитывая, что почти 30% роскошных домов никогда не появляются на открытом рынке. Агенты продавца представляют интересы продавца, а не покупателя. Даже запрос информации о недвижимости может привести к тому, что агент продавца зарегистрирует вас как своего «клиента» без вашего согласия.
С Baerz Property Finders & Advisors вы полностью избегаете всех этих ошибок. Мы работаем исключительно в ваших интересах, предлагая независимое представительство, четкое руководство и доступ ко всем доступным объектам, включая возможности вне рынка, которые другие никогда не увидят.

Интересует Личный Консультант по Недвижимости?

Мы показываем вам все доступные дома в одном месте. Не стесняйтесь связаться с нами, чтобы узнать, как мы можем удовлетворить ваши потребности и защитить ваши интересы исключительно.

Особенности

Солнечные панели
Сигнализация
Передача права собственности
Запрашиваемая цена
€ 1.295.000 k.k.
Статус
beschikbaar
Принятие
in overleg
Строительство
Тип дома
Villa
Тип здания
vrijstaande woning
Период строительства
2019
Энергетический рейтинг
A+++
Тип крыши
zadeldak
Спальни
4
Ванные комнаты
1
Площадь и объем
Жилая площадь
304 m2
Другое внутреннее пространство
0 m2
Внешнее складское пространство
38 m2
Объем в кубических метрах
1076 m3
Размер участка
649 m2
Удобства
Alarminstallatie
Buitenzonwering
Jacuzzi
Glasvezel kabel
Zonnepanelen
Aan rustige weg
In woonwijk
Baerz & Co Property Brochure

Брошюра

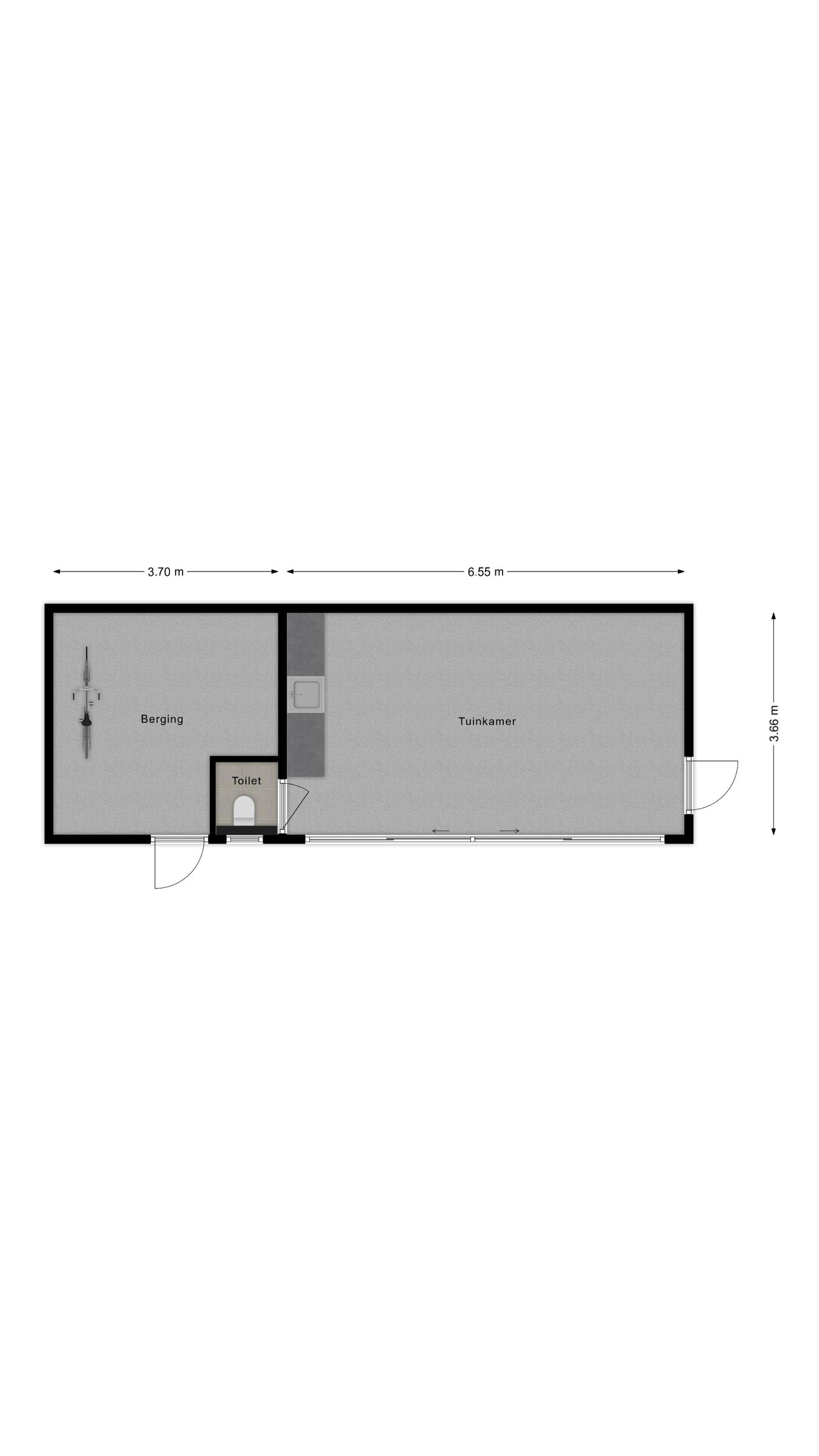
Планы этажей

Kordaat Makelaars

Liessentstraat 9 a
5405 AH Uden

bram@kordaatmakelaars.nl
+31 623454361

www.kordaatmakelaars.nl

Запрос информации / просмотра

Bram Van der Wielen profile image
Bram Van der Wielen
Owner, MMCEPI register makelaar

Покупка элитной недвижимости в Нистелроде

Нистелроде предлагает взыскательным жителям сбалансированное сочетание роскоши, приватности и духа общности. Безупречный сервис, живая культура и международные коммуникации делают его местом для тех, кто ценит качество и долгосрочные ценности.